Page 33 - BOS BBY v7
P. 33
Electric
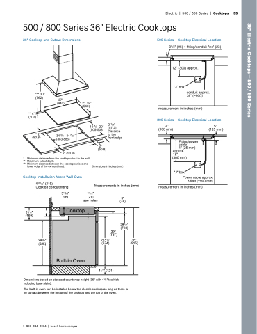
| | | 500 / 800 Series | | | Cooktops | | | 33 500 / 800 Series 36" Electric
Cooktops 61/16" (169)
30" Built-i1n1 oven - - under electric cooktop 4 /16" (119)
Measurements in in inches (mm)
3" (76)
281/4" 281/4" 281/4" 281/4" 36" Cooktop and Cutout Dimensions Installation above Wall Ovens
500 Series – Cooktop Electrical Location
245/85" 24 24 /8" 269/16"269/16" (674) (674) (674) (674) 43/4" (121)
43/4" (121)
36" 36" 36" 36" (915) (915) (915) (915) 245/8" (625)
800 Series – Cooktop Electrical Location
30" Built-in oven - - under electric cooktop 411/16" (119)
Cooktop conduit fitting
Cooktop Installation Above Wall Oven 13
3 3 /16" /16" see notes
(96) Cooktop 13
(21)
3" (76)
281/4" (718) 29"
(737)
269/16" 36" (674) (915) 43/4" (121)
36" Electric
Cooktops — 500 / 800 Series Built-in Oven Notes:
Dimensions based on on on standard countertop height (36" with 4 4 /4" toe kick
Installation Installation above above Wall Wall Ovens
Ovens
including base plate) Installation Installation above above Wall Wall Ovens
Ovens
The built-in oven can be be installed below the the electric cooktop cooktop as as long as as there is n3o0c"oBntuaicltt-ibnetowveen-thuenbdoetrtoemleocftrthicecooktopand the the the top top top top of the the the oven oven 61/16" 61/16" 61/16" 61/16" Cooktop Cooktop Cooktop Cooktop Built-in Built-in Oven Oven Built-in Built-in Oven Oven (169)
(169)
(169)
(169)
Notes:
1C1 ooktop conduit fitting
4 /16" (119)
Cooktop conduit fitting
313/16"
313/16("96) (96) 13/16"
13/16"
13/16"
(21)
(21)
(625)
(625)
(625)
(625)
DNimoetens:ions based on on standard countertop height (36" with 43/4" toe kick
including base base plate) Dimensions based on on standard countertop height (36" with 43/4" toe kick
Tihneclbuudiilnt-gin boavesne cpalantebe) installed below the the the electric cooktop as as long as as there is no contact between the the the the the bottom of of the the the the the cooktop cooktop cooktop and the the the the the top top top top of of the the the the the oven oven (21)
see notes
notes
3" see see notes
notes
(76)
The built-in oven oven can be be be be installed below the the the the the the the electric cooktop cooktop as as long as as there is no no contact between the the bottom of the the cooktMopeasnudretmhenttospinoifntchesov(menm )
1–800–944–2904 | bosch-home com/us
3 (718) (718) (718) (718) 29"
29"
29"
29"
(737)
(737)
(737)
(737)
Measurements in in inches (mm)

