Page 18 - DR•I 4.7
P. 18
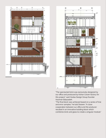
"The spectacled brick was exclusively designed by our office and produced by Kohan Ceram factory for this project," said Hooba Design Group founder Hooman Balazadeh.
"The final block was achieved based on a series of trial and error samples," he told Dezeen. "A close cooperation between our office and the producer resulted in an innovative building block which combines brick and glass to create a singular module."

