Page 32 - 1700 Country Club
P. 32

32
1700 COUNTRY CLUB DRIVE
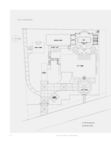
SITE OVERVIEW:
See following page for detailed oor-plans































































































   30   31   32   33   34