Page 13 - Flipping™ Arch
P. 13
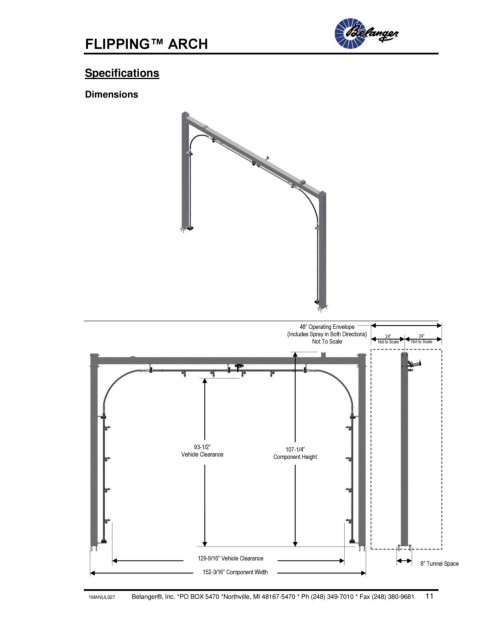
FLIPPING™ ARCH
Specifications
Dimensions
48” Operating Envelope
(Includes Spray in Both Directions) 24” 24”
Not To Scale Not to Scale Not to Scale
93-1/2” 107-1/4”
Vehicle Clearance Component Height
129-9/16” Vehicle Clearance 8” Tunnel Space
152-3/16” Component Width
1MANUL027 Belanger®, Inc. *PO BOX 5470 *Northville, MI 48167-5470 * Ph (248) 349-7010 * Fax (248) 380-9681 11

