Page 122 - 233423 - Exhaust Fans_Neat
P. 122
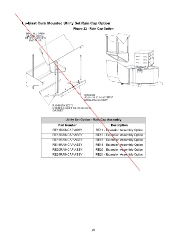
Up-blast Curb Mounted Utility Set Rain Cap Option
Figure 22 - Rain Cap Option
SEAL ALL OPEN
SEAMS USING
3M FIRE BARRIER
2000 PLUS.
800023B
#1/4 - 14 X 1-1/4" SELF
DRILLING SCREW.
R10480SX1X375
R10480-S SOFT CLOSED CELL
GASKET.
Utility Set Option - Rain Cap Assembly
Part Number Description
RE11RAINCAP ASSY RE11 - Extension Assembly Option
RE13RAINCAP ASSY RE13 - Extension Assembly Option
RE15RAINCAP ASSY RE15 - Extension Assembly Option
RE18RAINCAP ASSY RE18 - Extension Assembly Option
RE20RAINCAP ASSY RE20 - Extension Assembly Option
RE24RAINCAP ASSY RE24 - Extension Assembly Option
25

