Page 24 - Demo
P. 24

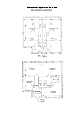
Total Internal Square Meterage 75m2
(all sizes are approximate)
    
































































































   22   23   24   25   26