Page 28 - Demo
P. 28

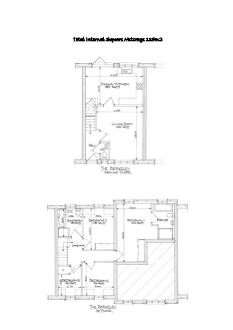
Total Internal Square Meterage 115m2
   

































































































   26   27   28   29   30