Page 31 - BPT Sanitary-Heating-Air Catalog
P. 31
Building Services
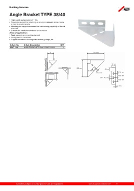
Angle Bracket TYPE 38/40
• High quality galvanisation 8 – 10 µ
• One-piece support for attaching as a support element above, below
or next to a wall console
• Attaching the support increases the load-bearing capability of the rail
structure
• Suitable for installations indoors and outdoors
Areas of application:
• Basic support or connecting element
• Fixing point for crossbars
• Support console for holding water meters, pumps, etc.
Article No. Article Description QTY
8547 1 04 ANGLE BRACKET 38/40 200X200X04 1
Availability subject to country specific rules and regulations. www.buypremiumtools.com 31

