Page 93 - ANNI-PRATIKTO_Pengujian Bahan 2 (Beton Aspal
P. 93
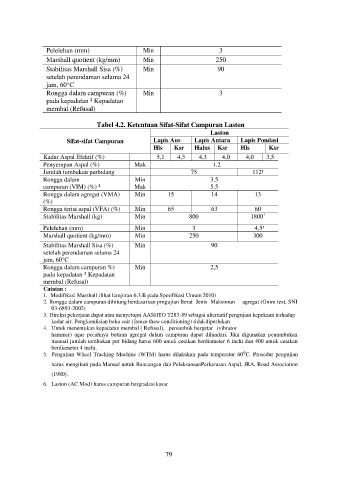
Pelelehan (mm) Min 3
Marshall quotient (kg/mm) Min 250
Stabilitas Marshall Sisa (%) Min 90
setelah perendaman selama 24
jam, 60°C
Rongga dalam campuran (%) Min 3
pada kepadatan ² Kepadatan
membal (Refusal)
Tabel 4.2. Ketentuan Sifat-Sifat Campuran Laston
Laston
Sifat-sifat Campuran Lapis Aus Lapis Antara Lapis Pondasi
Hls Ksr Halus Ksr Hls Ksr
Kadar Aspal Efektif (%) 5,1 4,3 4,3 4,0 4,0 3,5
Penyerapan Aspal (%) Mak 1.2
Jumlah tumbukan perbidang 75 112¹
Rongga dalam Min 3.5
campuran (VIM) (%) ³ Mak 5.5
Rongga dalam agregat (VMA) Min 15 14 13
(%)
Rongga terisi aspal (VFA) (%) Min 65 63 60
1
Stabilitas Marshall (kg) Min 800 1800
Pelelehan (mm) Min 3 4,5¹
Marshall quotient (kg/mm) Min 250 300
Stabilitas Marshall Sisa (%) Min 90
setelah perendaman selama 24
jam, 60°C
Rongga dalam campuran %) Min 2,5
pada kepadatan ² Kepadatan
membal (Refusal)
Catatan :
1. Modifikasi Marshall (lihat lampiran 6.3.B pada Spesifikasi Umum 2010)
2. Rongga dalam campuran dihitung berdasarkan prngujian Berat Jenis Maksimun agregat (Gmm test, SNI
03-6893-2002)
3. Direksi pekerjaan dapat atau menyetujui AASHTO T283-89 sebagai alternatif pengujian kepekaan terhadap
kadar air. Pengkondisian beku cair (freeze thaw conditioning) tidak diperlukan
4. Untuk menentukan kepadatan membal ( Refusal), penumbuk bergetar (vibrator
hammer) agar pecahnya butiran agregat dalam campuran dapat dihindari. Jika digunakan penumbukan
manual jumlah tumbukan per bidang harus 600 untuk cetakan berdiameter 6 inchi dan 400 untuk cetakan
berdiameter 4 inchi.
5. Pengujian Wheel Tracking Machine (WTM) harus dilakukan pada temperatur 60⁰C. Prosedur pengujian
harus mengikuti pada Manual untuk Rancangan dan PelaksanaanPerkerasan Aspal, JRA, Road Association
(1980).
6. Laston (AC Mod) harus campuran bergradasi kasar
79

