Page 24 - ALLOY Technical Detail V.2024
P. 24

   









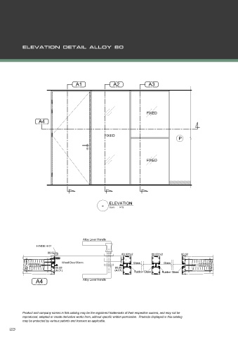
                                       A1                 A2               A3







                                                                          FIXED

                    A4



                                                     FIXED
                                                                                          P




                                                                          FIXED












                                                    -   ELEVATION
                                                        Scale    :   NTS








                                           Alloy Lever Handle
                   HINGE H.01
                         80.02                                80.03=x2       80.03=x2       80.02

                                Wood Door35mm.                      Glass          Glass
                ROCKWOOL                                                                            ROCKWOOL
                INSULATION                                                                           INSULATION
                             80.08                         80.08
                             (A.01)                       (A.01)    Rubber Glass   Rubber Glass
                   A4                      Alloy Lever Handle
   19   20   21   22   23   24   25   26   27   28   29