Page 78 - ALLOY Technical Detail V.2025-2
P. 78
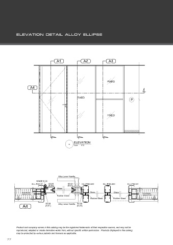
A1 A2 A3
FIXED
A4
FIXED
P
FIXED
- ELEVATION
Scale : NTS
Alloy Lever Handle
HINGE H.01
ELLIPSE-01 60.01 60.01 ELLIPSE-02E ELLIPSE-02E ELLIPSE-01
(A.01) (A.01)
Glass
ROCKWOOL Glass Glass ROCKWOOL
INSULATION
Rubber Glass INSULATION
Rubber Glass Rubber Glass
80.08 Alloy Lever Handle 80.08
A4 (A.01) (A.01)

