Page 45 - Alinsha Pristine
P. 45

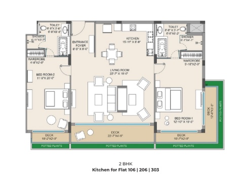
2 BHK
                                                             Kitchen for Flat 106 | 206 | 303
   40   41   42   43   44   45   46   47   48   49   50