Basic HTML Version
Table of Contents
View Full Version
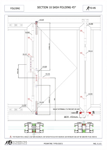
Page 145 - CATALOGUE-FD-85 (FOLDING SYSTEM)
P. 145
140
141
142
143
144
145
146
147
148
149
150