Basic HTML Version
Table of Contents
View Full Version
Page 20 - Obi Wan
P. 20
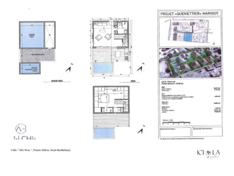
Villa “ Obi Wan “, Pointe Milou, Saint Barthélemy
15
16
17
18
19
20
21
22