Page 22 - 74 Baldwin Terrace
P. 22

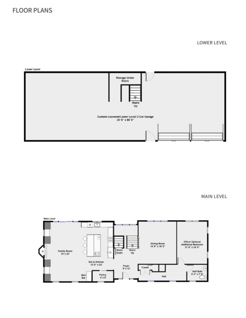
FLOOR PLANS








                                                                                                   LOWER LEVEL














































                                                                                                     MAIN LEVEL
   17   18   19   20   21   22   23   24   25   26   27