Page 17 - 1008 Fairfield Beach Road Brochure
P. 17

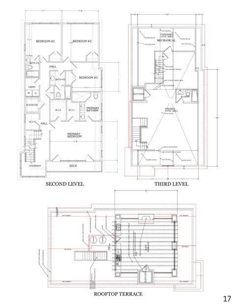
13'-7"             13'-6 " 1 2








               11'-10"
                    BEDROOM #1         BEDROOM #2
                                     14'-2 " 1
                                      2


                BATH #1
                           HALL

                                          BEDROOM #3
                              BATH #2

                LNDRY                        10'-11"
               W   D       LINEN


               ELEVATOR
                                              PRIMARY
                              W.I.C.  W.I.C.  BATHRM


                W.I.C.
                      HALL

                      UP            PRIMARY
                                    BEDROOM
                                       19'-2 " 1
                                         2




                 DN
                STAIRWAY             DECK




                         SECOND LEVEL                                            THIRD LEVEL

































                                                  ROOFTOP TERRACE
                                                                                                                     17
   12   13   14   15   16   17   18   19   20   21   22