Page 16 - 54 Bloomer Long Brochure New
P. 16

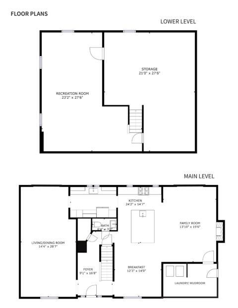
FLOOR PLANS

                                                                                    LOWER LEVEL















































                                                                                                MAIN LEVEL

































                                                                                           LAUNDRY/ MUDROOM
   11   12   13   14   15   16   17   18   19   20   21