Page 22 - 151 Merwins Lane
P. 22

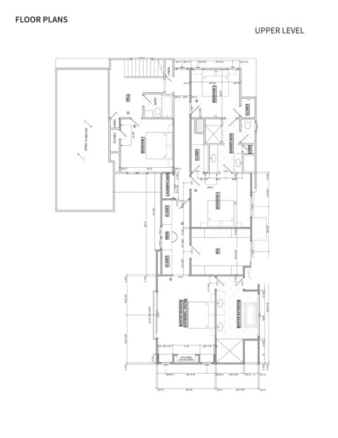
FLOOR PLANS

                                                                                             UPPER LEVEL
   17   18   19   20   21   22   23   24   25   26   27