Page 15 - 21 Hill Circle, Trumbull Brochure
P. 15

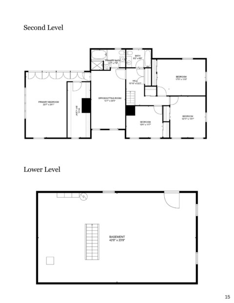
Second Level












































             Lower Level








































                                                                                                                       15
   10   11   12   13   14   15   16   17   18   19   20