Page 20 - 140 Old Stonewall Road
P. 20

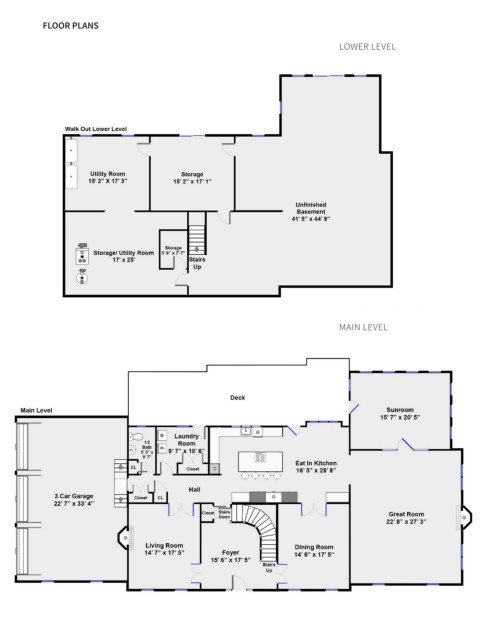
FLOOR PLANS

                                                                                        LOWER LEVEL











































                                                                                        MAIN LEVEL
   15   16   17   18   19   20   21   22   23   24   25