Page 22 - 95 Greenleigh
P. 22

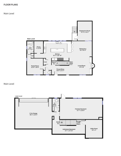
FLOOR PLANS




     Main Level










































     Main Level
   17   18   19   20   21   22   23   24   25   26   27