Page 17 - 1405 Stillson Road
P. 17

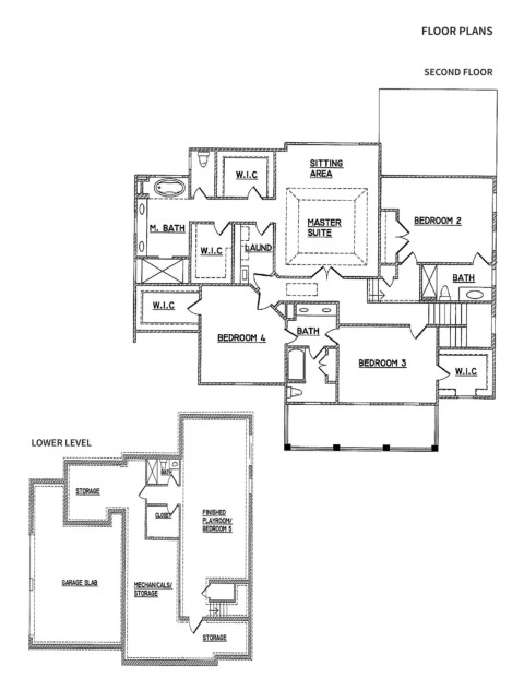
FLOOR PLANS





                                                                                                    SECOND FLOOR




















































        LOWER LEVEL
   12   13   14   15   16   17   18   19   20   21   22