Page 21 - 121 Ann Street
P. 21

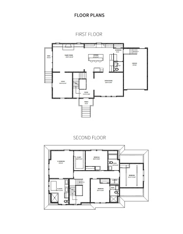
TOP TEN THINGS YOU'LL LOVE ABOUT THE BEACH           FLOOR PLANS






                                                       FIRST FLOOR












































                                                     SECOND FLOOR
   16   17   18   19   20   21   22   23   24