Page 18 - 32 Bibbins Brochure
P. 18

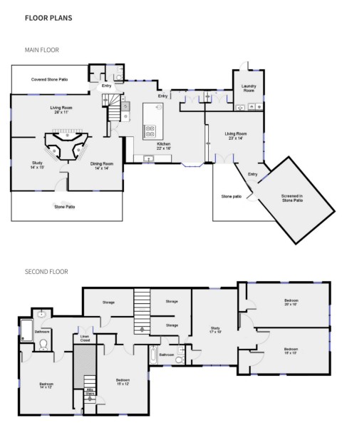
FLOOR PLANS





          MAIN FLOOR
















































          SECOND FLOOR
   13   14   15   16   17   18   19   20   21   22   23