Page 181 - AREA VIII PPP
P. 181

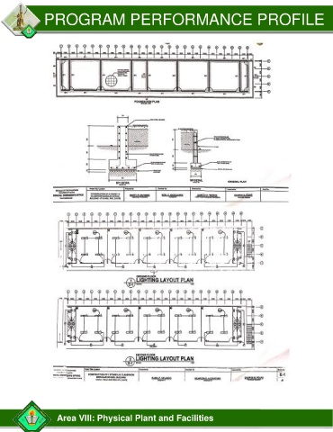
PROGRAM PERFORMANCE PROFILE



























































































                      Area VIII: Physical Plant and Facilities
   176   177   178   179   180   181   182   183   184   185   186