Page 194 - AREA VIII PPP
P. 194

PROGRAM PERFORMANCE PROFILE





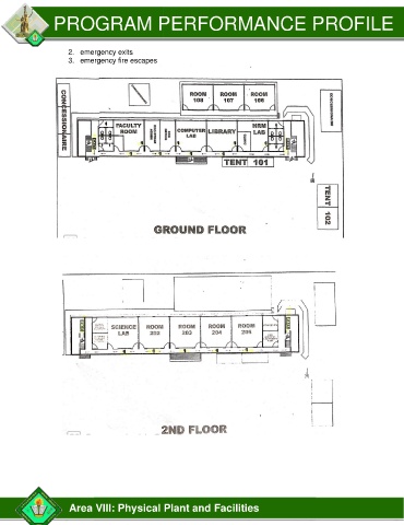
                      2.  emergency exits
                      3.  emergency fire escapes















































































                      Area VIII: Physical Plant and Facilities
   189   190   191   192   193   194   195   196   197   198   199