Page 7 - 2231 Forrest Lane Presentation 8.11.22
P. 7
ADDITIONAL NOTES:
N° 0011105
STATE OF
FLORIDA
REGISTERED ARCHITECT
Date
Revisions
107
HDR @10'-0"
SINK
108 106
105
36" Gas Grill W/ Hood Insert Above
HDR @10'-0" LIVING ROOM
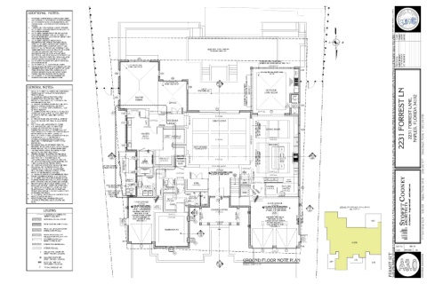
GENERAL NOTES: 104
OUTDOOR
109 MASTER
BEDRM.
OFFICE POOL
BATH 103
E
G
10'-0" CLG.
HDR 10'-0" 12'-0" CLG. F
R1 110 10'-0" SOFFIT 11'-0" CLG.
HDR @10'-0" 2231 FORREST LN 2231 FORREST LANE, NAPLES, FLORIDA 34102
VESTIBULE
12'-0" CLG. GREAT ROOM
111 12'-0" CLG.
DINING ROOM 102
MASTER Delray Beach, Florida (561) 243.0799
BATH ATTIC HIS W.I.C
ACCESS 11'-6" CLG.
11'-0" CLG. 10'-0" CLG.
11'-6" CLG. HDR @10'-0" 11'-0" CLG. Bar
112 MIRROR KITCHEN
BOTT. OF BOXED
BEAMS @11'-4" DW.
113 HER W.I.C Sink
SEAT INFINITY LINEAR DRAIN HDR @10'-0" 11'-6" CLG.
RAINHEAD 10'-0" CLG. FUTURE
10'-0" CLG. ELEV.
FLAT HDR. @10'-0" DW.
10'-0" CLG.
10'-0" HDR. 11'-0" CLG. 22T.@ 11"
TUB DECK FOYER Ovens
UP.
114 23R.@ 7.0" 11'-6" CLG.
11'-0" CLG. 23R.@ 6.95" +1" NOSING 01 11'-0" CLG.
DN.
22T@ 11"
10'-0" HDR 01 +1" NOSING 02
03
DN
Mitsubishi 02 04 36" 36" 10'-0"
C.U. Ref./Freezer Ref./Freezer
03 05 SOFFIT
WINE BAR 10'-0" CLG.
Pool Equip. Sink 11'-0" CLG. 04 8'-0" CLG. 06
115
Below UTILITY 10'-0" CLG. 05 07 PANTRY BUTLERS
11'-0" CLG. POWDER 06 11'-0" CLG. PANTRY 101
10'-0" CLG.
Wine 07 09 11'-0" CLG.
Sink
08 10
Washer Dryer STO.
FLOOD 09 11
VENT
10'-0" CLG. F.D. 10 11
W.I.C BATH #2 111 Tenth Street South Suite 308 Naples, Florida 34102 (239) 262.7677
10'-0" CLG. A
1-CAR GARAGE 10'-0" CLG.
9'-0" CLG. 2-CAR GARAGE FLOOD VENT
ATTIC 9'-0" CLG.
FLOOD VENT ACCESS NON A/C: 287+538+423+181=1,429 S.F.
A/C: 4,008 S.F.
LEGEND COVERED ENTRY FLOOD VENT ATTIC
11'-4" CLG.
12-0" CLG. FLAT HDR @10'-4" FLAT HDR @10'-4" ACCESS
13-0" CLG.
118
H 423
R1 FLAT HDR
@10'-4"
FLOOD VENT
BEDROOM #2
D
117
R1 4,008
I Job No.
116 Date:
B C
PERMIT SET LICENSE# AA26000793
R1
GROUND FLOOR NOTE PLAN 181
287
538
SCALE: 3/16"=1'-0" A3.0

