Page 9 - 959 17th Avenue South Spec Home Presentation
P. 9
NOTES
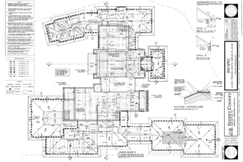
SCALE : 3/16" = 1'-0"
LOWER ROOF &
FLOOR FRAMING PLAN
PERMIT SET FLAT ROOF - OUTWARD SLOPE LEGEND BEAM SCHEDULE DETAIL - B DETAIL - A SCALE : 1/2" = 1'-0" OVERHANG DTLS, TYP.
Revisions Date
959 SPEC REGISTERED
Date:
Scale:
Sheets:
Job No.
@ 959 17TH AVE. SOUTH, NAPLES, FL 34102 ALL IDEAS, DESIGNS, ARRANGEMENTS, AND PLANS INDICATED OR REPRESENTED BY THIS DRAWING ARE FLORIDA STATE OF N° 0011105
OWNED BY, AND THE PROPERTY OF THIS OFFICE, AND WERE CREATED, EVOLVED, AND DEVELOPED FOR USE ON
AND IN CONNECTION WITH THE SPECIFIED PROJECT. NONE OF SUCH IDEAS, DESIGNS, ARRANGEMENTS OR ARCHITECT
PLANS SHALL BE USED BY, OR DISCLOSED TO ANY PERSON, FIRM, OR CORPORATION FOR ANY PURPOSE
of
WHATSOEVER WITHOUT THE WRITTEN PERMISSION OF RANDALL E STOFFT, ARCHITECTS P. A.. WRITTEN
A TOSCANA HOMES PROJECT DIMENSIONS ON THESE DRAWINGS SHALL HAVE PRECEDENCE OVER SCALED DIMENSIONS. CONTRACTORS
SHALL VERIFY AND BE RESPONSIBLE FOR ALL DIMENSIONS AND CONDITIONS ON THE JOB. AND THIS OFFICE
MUST BE NOTIFIED OF ANY VARIATIONS FROM THE DIMENSIONS AND CONDITIONS SHOWN BY THESE
DRAWINGS. SHOP DETAILS OF ADEQUATE SCALE MUST BE SUBMITTED TO THIS OFFICE FOR APPROVAL
BEFORE PROCEEDING WITH FABRICATION ON ITEMS SO NOTED.
633 Ninth Street North, Suite 300 • Naples, Florida 34102 • (239) 262.7677 • Delray Beach, Florida (561) 243.0799 • WWW.STOFFTCOONEY.COM
Z:\Residential\Toscana_Homes\#2105-10N_959_17thS_Spec\Drawings\Toscana_959_Structures.dwg, 10/6/2021 7:53:43 AM

