Page 34 - 2019종합카다로그_Accessories
P. 34

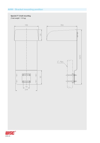
A090 : Bracket mounting position



            Special 2" U bolt mounting
            (Total weightš3.8 kg)











































































       A090_08
   29   30   31   32   33   34   35   36   37   38   39