Page 59 - Satu Naga Catalogue
P. 59

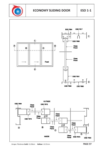
ECONOMY SLIDING DOOR                                   ESD 1-1































































































              Unspec Thickness Solid ± 0.20mm     Hollow ± 0.25mm                                PAGE 57
   54   55   56   57   58   59   60   61   62   63   64