Basic HTML Version
Table of Contents
View Full Version
Page 171 - TA_File Modul Digital_27102023
P. 171
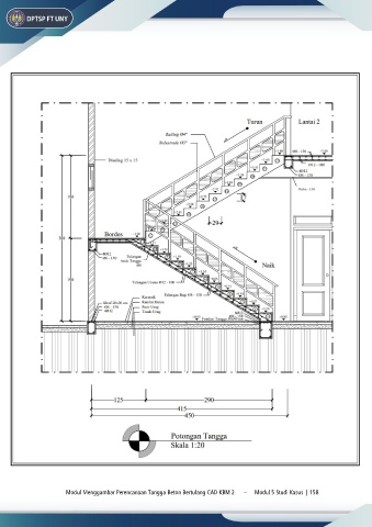
Modul Menggambar Perencanaan Tangga Beton Bertulang CAD KBM 2 – Modul 5 Studi Kasus | 158
166
167
168
169
170
171
172
173
174
175
176