Page 21 - 04_Basic Permit Set
P. 21
06/06/2022
SHEET TITLE FINISH FLOOR PLAN A700
| 2116
project
1 PIANALTO RESIDENCE Shawnee, KS 66216 VINCE & BAILEY PIANALTO
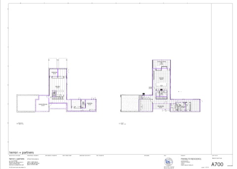
Area 254 SF PROJECT 4728 Noland Rd OWNER
Architect
06/06/2022 David Herron - Kansas License #6335
Composite Decking Area 312 SF Cork Area 1888 SF Area 119 SF Tile Slab Area 182 SF
2 DN SEAL
DN
DN
REVISIONS
DN
3
Level 1 1/8" = 1'-0"
1
4
CIVIL ENGINEER
5
Carpet Area 490 SF
Tile Area 71 SF LANDSCAPE ARCHITECT
CODE CONSULTANT
6
UP
Cork Area 1109 SF
Rubber Area 120 SF Tile Area 39 SF MECHANICAL ENGINEER
Concrete Slab Area 547 SF
7
STRUCTURAL ENGINEER STRUCTURA LOGICA 18901 E 299th Street Harrisonville, MO 64701 phone: 816.872.4883
Basement 1/8" = 1'-0" herron + partners
8
ARCHITECT OF RECORD p.o. box 414986 phone: 816.832.4647
2 herron + partners Kansas City, Missouri 64111 www.herronandpartners.com © 2022 david herron and partners, llc
H G F E D C B A

