Page 14 - Cicero Elementary Portfolio Guide
P. 14

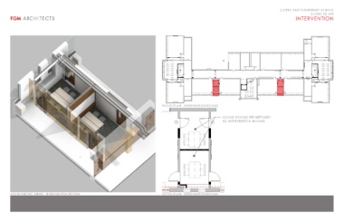
CICERO EAST ELEMENTARY SCHOOL
                                                                                                                                                                                                                              CICERO SD #99
                                                                                                                                                                                                                    INTERVENTION





































                                                                                                                    FLOOR PLAN - INTERVENTION ROOMS



                                                                                                                                                               CLOAK ROOMS REPURPOSED
                                                                                                                                                               AS INTERVENTION ROOMS































        AXONOMETRIC VIEWS - INTERVENTION ROOMS                                                                      FLOOR PLAN - INTERVENTION ROOMS
                                                                                                                         NEW LOW HEIGHT COUNTER (CONCEAL PIPES)

                                                                                                                         NEW CASEWORK

                                                                                                                        MECHANICAL PIPES
   9   10   11   12   13   14   15   16   17   18   19