Page 69 - MODUL GAMBAR TEKNIK SMK PANGUDI LUHUR MUNTILAN
P. 69
5
35
40
35
5
sKALA 1:20
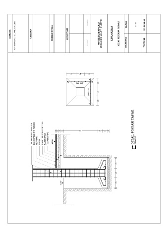
5 20 15 125 13 -0.30 5 7 5 ±0.00 TANAH URUG PASIR URUG RABAT BETON COR 1:3:5 SPESI KERAMIK SENGKANG Ø10-100/200 TULANGAN POKOK Ø16
DETAIL PONDASI TAPAK
35
40
Ø10-140
Ø10-140
35
35 ........... 40 35 MENYETUJUI PEMBERI TUGAS CATATAN P1 = PONDASI TAPAK 120X120 LEGENDA
............
tanggal
dIgambar
judul gambar
1 : 20
PROYEK PEMBANGUNAN
skala
denah RENCANA PONDASI
RUMAH KOS MELATI 3 LANTAI
no.gambar

