Page 35 - 251009_HAP_Exposé_Blätter_PDF_11_Wohnungen.indd
P. 35
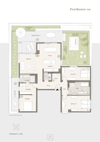
Penthouse 09
Dachgarten 2
ca. 20m²
Dachterrasse 1
Pergola ca. 40m² Whirlpool
Essen Dachgarten 1
Wohnen
M 1:100
W N
S O
Black-Diamond SUITE Hier, hoch über den Dächern der Stadt, Kochen 2m
erwartet Sie ein Refugium, das keine DF
Wünsche offenlässt.
Zimmer 1
WC
Gard.
Öffnen Sie die raumhohen Schiebetüren Du./WC
und betreten Sie Ihre private Dachter-
Penthouse 09
rasse – ein Paradies, das seinesgleichen Diele
sucht. Ankleide 9 Flur Bad
Diele 9,23 m² Ein üppiger Dachgarten umgibt einen DF Flur Wohnfläche:
Diele
Flur 3,44 m² luxuriösen Whirlpool, in dem Sie Dachterr. 2 WM 2m Garderobe
mit Panoramablick über die Stadt Ankleide
Garderobe 3,10 m² entspannen. Schlafen Bad
Ankleide 8,15 m² Schlafen Wohnen/Essen/Kochen
Zimmer 1
Zimmer2
Wohnen/Essen/Kochen 43,91 m² Zimmer 2 DF WC 3,44 m²
9,23 m²
Dusche/WC
Bad 11,38 m² Dieses Penthouse ist mehr als nur ein DF 8,15 m²
3,10 m²
Zimmer 1 15,62 m² Zuhause – es ist ein Statement. 2m Gesamtfläche: 11,38 m²
43,91 m²
Willkommen in einem Wohntraum, der 18,42 m²
Zimmer 2 18,42 m² 11,99 m²
15,62 m²
Sie und Ihre Gäste immer wieder aufs unverbindliche Illustration 5,41 m²
Dachterrasse 1 (29,39 m²)
Dachterrasse 2 (9,03 m²)
Schlafen 11,99 m² Neue begeistern wird. 14,70 m²
2,56 m²
Dusche/WC 5,41 m² Projekt 152,43 m²
4,52 m²
WC 2,56 m² W S Bianco
N
Dachterrasse 1 (29,39 m²) 14,70 m² Bauherr
Dachterrasse 2 (9,03 m²) 4,52 m² S O
Maßstab 1 | 100
Gesamtfläche 152,43 m²
34 Kranstraße 8, 70499 Stuttgart Planverfasser
35
Godel Planen + Bauen GmbH & Co. KG
Wohnung 9
herdweg 73, 70174 stuttgart
Datum
gez.
marcus brucker architektur+planung
Maßstab
Plannr.
mbr
Index
D 09 1:100 21.03.25

