Page 41 - 251009_HAP_Exposé_Blätter_PDF_11_Wohnungen.indd
P. 41
Optionale Wohnungsvariante
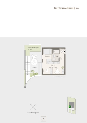
Gartenwohnung 10
Bad
Garten Wohnung 10 Gesamtfläche: Diele Wohnfläche:
ca. 12m²
Terrasse (13,65 m²)
10
Kochen/Essen/Schlafen/Wohnen
Schlafen Bad 23,26 m²
3,73 m²
4,23 m²
Diele 38,05 m²
6,83 m²
Raumwunder W N TG-Rampe 2. Rettungsweg zur Kochen
M 1:100
Intelligente Raumgestaltung und offe- Terrasse Wohnen/Essen
nen Atmosphäre vom ersten Moment O
S
an. Schon beim Betreten entsteht das
Projekt
Gefühl, durch die harmonische Propor- LS
S Bianco
tionen und dem durchdachtem Design – unverbindliche Illustration
Bauherr
Hier bin ich Zuhause.
Jeder Bereich ist optimal genutzt, sodass
ein stimmiges Wohngefühl entsteht –
elegant, luftig und überraschend weitläu-
fig. Godel Planen + Bauen GmbH & Co. KG
1
Dieses Zuhause beweist, dass wahre
Kranstraße 8, 70499 Stuttgart
Größe im Detail liegt – und in der Kunst,
Gartenwohnung 10
Raum perfekt zu inszenieren. Wohnung 10
Diele 3,73 m² Planverfasser W N 2
10
Bad 4,23 m²
S O
Kochen/Essen/Wohnen 23,26 m² marcus brucker
Terrasse (13,65 m²) 6,83 m² architektur+planung Maßstab 1 | 100
6 3
Gesamtfläche 38,05 m² herdweg 73, 70174 stuttgart 11
40 Maßstab 41
Datum
gez.
Plannr.
mbr
06.10.25
Index
7 4
1:100
10
E
8 5
9
3a
Projekt
S Bianco
Bauherr
6a
Kranstraße 8, 70499 Stuttgart
Godel Planen + Bauen GmbH & Co. KG
Planverfasser
Lagepiktogramme
herdweg 73, 70174 stuttgart
Datum
gez.
marcus brucker architektur+planung
Maßstab
Plannr.
mbr
Index
C 12 1:100 15.10.25

