Page 42 - Hydra-matic 6 Speed RWD Technician's Guide (October 2005)
P. 42
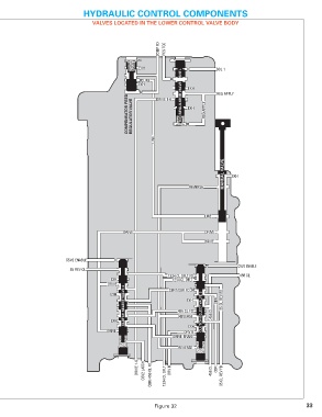
HYDRAULIC CONTROL COMPONENTS
VALVES LOCATED IN THE LOWER CONTROL VALVE BODY
COMP FD PCS TCC
EXH SOL 1
SHTL
LINE
EXH DRIVE 1-6 EXH REG APPLY
COMPENSATOR FEED REGULATOR VALVE TCC REGULATOR VALVE EXH REG APPLY
LINE
MANUAL VALVE EXH
REVERSE
LINE
DRIVE DRIVE
DRIVE
CSV2 ENABLE
CSV3 ENABLE
35 REV CL
1234 CL DFLT FD 456 CL
EXH 1234 CL DFLT
DRIVE
CLUTCH SELECT VALVE 2 456 CL FD CLUTCH SELECT VALVE 3 CBR 35 CL REV FD
EXH CBR1/CBR FD
EXH
EXH REVERSE 456 CL
EXH
DRIVE DRV B
DRIVE BRAKE
REVERSE
DRIVE 1-6 CSV2 LATCH CBRI/456 CL FD 1234 CL DFLT DRV B 456 CL CBR 35 CL REV FD
Figure 32 33

