Page 18 - Cheyla Marrero Interior Design Portfolio
P. 18

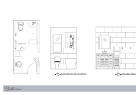
BATHROOM EL






                                                                    B
















                                                                   BATHROOM ELEVATION













                                                                    A  B



















                                                                                 room


                                                                                Bath
   13   14   15   16   17   18   19   20