Page 24 - 55 W Goethe 1227
P. 24
Office
20' 0" x 12' 3"
Open To
Master Bedroom
Below
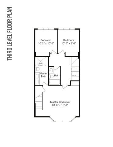
third Level floor plan
FOURTH FLOOR
N
Pwd.
Dining Room Bedroom Bedroom
14' 6" x 10' 6"
Laundry 10' 2" x 10' 0" 10' 0" x 9' 6"
STACK W/D
Two-Car Garage REF
19' 8" x 17' 0"
Mech. Oven Steam
Shower
DW
Master
Bath Bath
DW REF
Micro
Wet Bar REF
Kitchen
16' 0" x 16' 0"
Family Room Foyer
19' 0" x 12' 6" 12' 0" x 7' 0" Living Room
FP Master Bedroom
20' 0" x 15' 6"
20' 0" x 15' 6"
SECOND FLOOR THIRD FLOOR
Front Patio
20' 8" x 13' 6"
FIRST FLOOR
55 W. Goethe Street #1227
Chicago, Illinois

