Page 59 - Profil Stasi St.Yosef Gedung Johor
P. 59
GEREJA KATHOLIK STASI SANTO YOSEF GEDUNG JOHOR
PAROKI SANTO FRANSISKUS ASISI PADANG BULAN MEDAN
KEUSKUPAN AGUNG MEDAN
Jl. Karya Murni Kav 01 – Kelurahan Gedung Johor – Kecamatan Medan Johor
Medan - Sumatera Utara
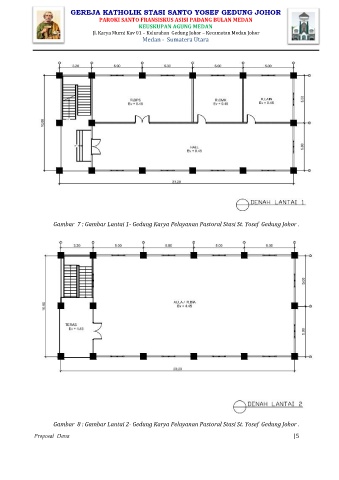
Gambar 7 : Gambar Lantai 1- Gedung Karya Pelayanan Pastoral Stasi St. Yosef Gedung Johor .
Gambar 8 : Gambar Lantai 2- Gedung Karya Pelayanan Pastoral Stasi St. Yosef Gedung Johor .
Proposal Dana |5

