Page 70 - BREDI-CW
P. 70

BREDI               ®


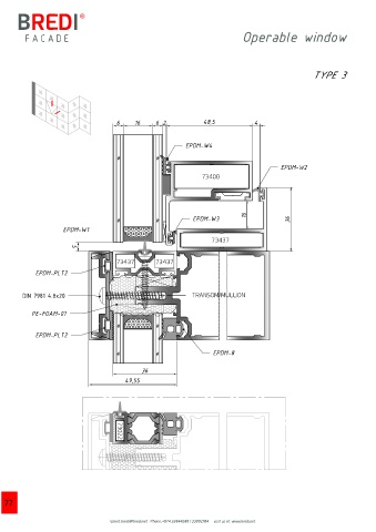
        FACADE                                                                Operable window





                                                                                                    TYPE 3








                                      6     16    6  2           48,5            4


                                                            EPDM-W4



                                                                                          EPDM-W2
                                                                 73400






                                                                               16
                                                              EPDM-W3                        36
                     EPDM-W1
                                                                    73437
                         5
                                      73437       73437

            EPDM-PLT2


        DIN 7981 4.8x20                                       TRANSOM/MULLION


           PE-FOAM-01


            EPDM-PLT2

                                                                    EPDM-8


                                              36
                                        49,55










                                      73022










  77


                                        Email: bredi@bredi.net    Phone: +974 33844588 / 33802104       visit us at : www.bredi.net
   65   66   67   68   69   70   71   72   73   74   75