Page 18 - 193 Newtown Turnpike
P. 18

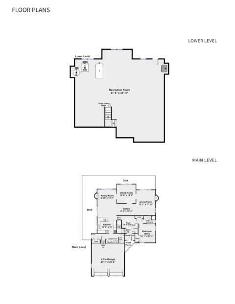
FLOOR PLANS








                                                                                                   LOWER LEVEL





































                                                                                                     MAIN LEVEL
   13   14   15   16   17   18   19   20   21   22   23