Page 22 - UL_Report On_Part 1
P. 22
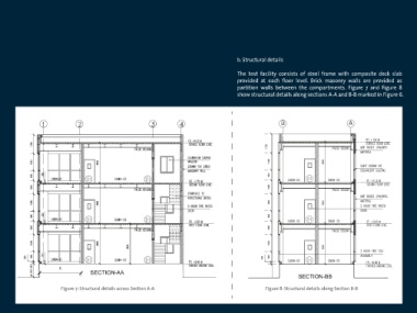
b. Structural details
The test facility consists of steel frame with composite deck slab
provided at each floor level. Brick masonry walls are provided as The building ghas three sides on which different
partition walls between the compartments. Figure 7 and Figure 8 façade can be tested. Two sides are designed to test
show structural details along sections A-A and B-B marked in Figure 6. external fire spread mechanisms (left face visible in
Image 1) while the third side is meant for testing
internal fire spread mechanism (front face in Image
1). Figure 3 and Figure 4 show elevation views of the
faces corresponding to testing external fire spread
mechanism with typical dimensions of façade
system. Figure 3 specifically depicts the details of
façade used in two of the full-scale fire tests (60%
glass and 40% ACP) while Figure 4 specifically
depicts the details of façade used in one fire test
(60% glass and 40% MDF).
Figure 5 shows the elevation view of the test face
designed for testing for internal fire spread. There is a
notable difference between this face and the other
two faces in the use of masonry panels in the
spandrel area. This is to ensure that the spandrel area
is wide enough and non-combustible so that the
chances of flames externally propagating to the next
floor are minimized and failure of the inter-storey
fire stop material are maximized. Typical floor plan
of all the three storeys is shown in Figure 6.
Figure 7: Structural details across Section A-A Figure 8: Structural details along Section B-B

