Page 1025 - سابقة أعمال ايجي ريفيت السكني
P. 1025

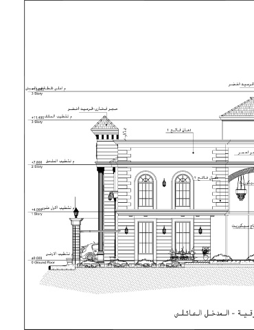
+13.680                                                                                     +13.680
         3 Story                                                                                     3 Story

         +11.400                                                                                     +11.400
         3 Story                                                                                     3 Story




         +7.800                                                                                      +7.800
         2 Story                                                                                     2 Story




         +4.000                                                                                      +4.000
         1 Story                                                                                     1 Story




         ±0.000                                                                                      ±0.000
         0 Ground Floor                                                                           0 Ground Floor

                                                                                                                A 3



                                                                                                          A 0   1  1
   1020   1021   1022   1023   1024   1025   1026   1027   1028   1029   1030