Page 1049 - سابقة أعمال ايجي ريفيت السكني
P. 1049
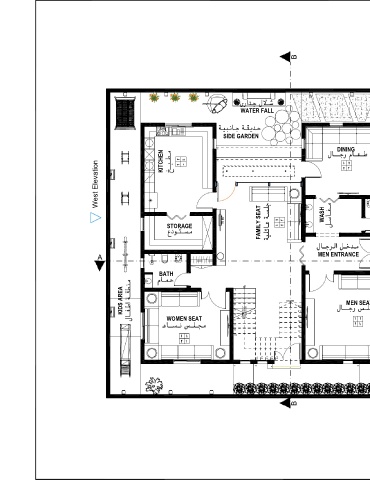
N
B
North Elevation
WATER FALL
SIDE GARDEN
DINING
1
KITCHEN
West Elevation
2
TV 55'' FAMILY SEAT WASH BATH East Elevation
STORAGE 1
A MEN ENTRANCE MEN ENTRANCE A
BATH
KIDS AREA 1 2 3 4 UP DOWN 22 MEN SEAT
WOMEN SEAT 5 6 7 22R x 0.17 21G x 0.29 21 20 19 GREEN AREA
18
8
17
9
16
10
1 11 2 12 13 14 15 2 1
1
FAMILY ENTRANCE
B
South Elevation A 3
A 0 0 2

