Page 109 - سابقة أعمال ايجي ريفيت السكني
P. 109
SPOT LIGHT 26W LED LAMP SURFACE MOUNTED,
CIRCULAR LUMINARIES, IP 23 (سبوت 2سوات)
GLOB FOR USE IN BATHROOMS 1X24W LED LAMP
, IP 44 (سبو2تح2ابا22اوات)
LUMINARIES FOR MIRROR IN BATHROOMS 18W
LED LAMP, IP 44 (سبوف 2ابا2اب2فمبوا2ةبات)
Wall Mounted outdoor lamp LED - WP - IP54-36W
(سبوج فموتاب2اابوااا2اوبلا22لتوبا2ةبات)
OUTLET LIGHTING , 300 WATT
(سبوج 2فةت32تواا)
SPOT LIGHT 2X20W LED LAMP Wall MOUNTED,
(سبو2ت كت2استا2ةبات)
Outlet 18W LED LAMP Wall MOUNTED
(سبوف 2فووتاب2تواا)
Outlet 20W LED LAMP Ceiling
(سبوت 2فمبا 2تواا)
LED LINE STRIPLIGHT 18W,
(ووتم 2 ما2يموا)
Ceiling MOUNTED LUMINAIRE-LED LAMP 26 WATT, IP54
NIGHBOUR Ceiling MOUNTED LUMINAIRE-LED LAMP 26 WATT, IP54
(سبوت 2فمتوبااب2فاباباا2ةلت2ةبات2تواا)
(سبوت 2ااباتاب2فابابا2ةلت2ةبات2تواا)
WALL Luminaire outdoor lamp LED - WP - IP54-36W
MDB (سبوج فموتاب2اابوااا2اوبلا2ماوب2لتوبا2ةبات)
O- L/13
WALL MOUNTED OUTDOOR LUMINAIRE
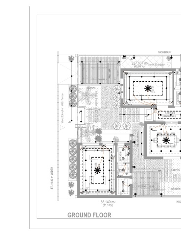
227.887 m 2 W.P -LED LAMP 26 WATT, IP54
(سبوت فموتاب2اابوااا2اوبلا2ةووابا2مبا2لتوبا2ةبات)
O- L/12 North Elevation GR- L/2
(43.60 %) STORE DOWN LIGHT 2X18W LED LAMP SURFACE MOUNTED,
CIRCULAR LUMINARIES, IP 23
Floor Luminaire outdoor lamp LED - WP - IP54-36W
(سبوج فموتاب2اابوااا2اوبلا2ماوب2لتوبا2ةبات)
ONE GANG ONE-WAY SWITCH (16A)
ONE GANG ONE-WAY SWITCH (16A)
BATH ONE GANG TWO-WAY SWITCH (16A)
LADIES N DISTRIBUTION PANEL BOARD
GARDEN
MAJLIS GR- L/4 H.WASH GR- L/3 KITCHEN GUEST ROOM MDB MAIN DISTRIBUTION PANEL BOARD
West Elevation With Fence O- L/10 West Elevation Without fence GR- L/6 GR- L/5 O- L/9 GR- L/7 ENTRANCE MIRROR ELEV. GR- L/10 SS1- L/1 26 DOWN DOWN 25 25 24 24 23 23 22 22 21 21 20 20 G- L/1 19 19 1
GENTLES
O- L/11
25R x 0.16
24G x 0.28
24G x 0.28
GARDEN GR- L/8 MIRROR UP UP 1 2 3 4 5 25R x 0.16 7 8 9 10 11 12 13 13
6
WALL WATERFALL DINING FAMILY ENTRANCE
O- L/8 BATH GR- L/11
O- L/7 GR- L/9
O- L/2 TV 70"
GR- L/12 NIGHBOUR
H.WASH O- L/1 FAMILY LIVING
GR- L/13
ST. 16.00 m WIDTH O- L/3 GENTLES MAJLIS BATH STORE GARDEN GR- L/14 O- L/6
South Elevation
O- L/5 O- L/4 EXTERNAL SEAT GARDEN A 3
58.140 m 2 NIGHBOUR
(11.10%)
GROUND FLOOR E 0 0 2

