Page 1147 - سابقة أعمال ايجي ريفيت السكني
P. 1147

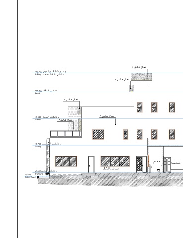
+13.700                                                                           +13.700
             4 Story                                                                            4 Story

             +11.100                                                                           +11.100
             3 roof                                                                             3 roof


             +7.500                                                                             +7.500
             2 Story                                                                            2 Story



             +3.750                                                                            +3.750
             1 Story                                                                           1 Story


             ±0.000                                                                            ±0.000
         -0.450  0 Ground Floor                                                              0 Ground Floor  -0.450
         SIDE WALK                                                                               SIDE WALK



                                                                                                                A 3



                                                                                                          A 0   1  0
   1142   1143   1144   1145   1146   1147   1148   1149   1150   1151   1152