Page 118 - سابقة أعمال ايجي ريفيت السكني
P. 118
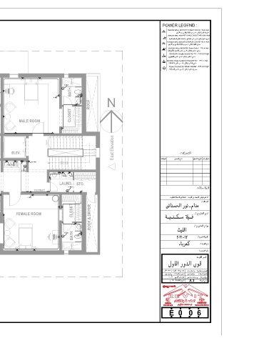
POWER LEGEND :
16A/230V WALL MOUNTED SINGLE SOCKET-40cm high
20A/230V WALL MOUNTED SINGLE SOCKET WP-120cm high
WP
16A/230V WALL MOUNTED DUPLEX SOCKET 40 cm high.
WP 20A/230V WALL MOUNTED Power Socket - 120 cm high
20A/230V Single Socket for TV - 150 cm high
TV
248.160 m 2 EX.FAN 20A/230V Single Socket for Exhausted Fan - 270 cm high
(47.72 %) North Elevation WH Power Socket for Water Heater - 270 cm high
EX.FAN
WP
F- WH/1
MASTER MIRROR WH BATH
BED ROOM MAKEUP BATH F- WH/5 F- NS/2 F- NS/1 EX.FAN
WH N
WP
F- NS/7 CLOSET CLOSET ROOF
West Elevation With Fence West Elevation Without fence TV 55" TV F- NS/6 PORTRAIT F- NS/8 MIRROR MALE ROOM DOWN 25 24 23 22 21 20 19 18 17 16 15 14 East Elevation
ENTRANCE
OFFICE
PRIVATE SEAT F- NS/10
TV
F- NS/9 SHOES STO. ELEV. WP EX.FAN F- NS/3 25R x 0.16 13 12
TV 50" WP UP 24G x 0.28
F-PS/4 F-PS/3
WH 10 11
F- WH/4 1 2 3 4 5 6 7 8 9
F- NS/11 EX.FAN W F-PS/2 WP WP D F-PS/1
CHILD WP
BED ROOM WP FAMILY LIVING PORTRAIT LAUND. STO. WP
F- WH/2
WH
BATH EX.FAN F- NS/5
WH
F- WH/6
CLOSET
FEMALE ROOM ROOF & DRYER
F- WH/3 WP EX.FAN
WH BATH F- NS/4
South Elevation
A 3
FIRST FLOOR
E 0 0 6

