Page 1260 - سابقة أعمال ايجي ريفيت السكني
P. 1260

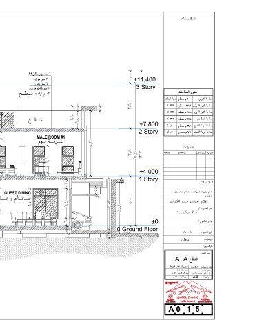
+11,400                         +11,400
 3 Story                          3 Story
 BED ROOM  BED ROOM


 +7,800                           +7,800
 2 Story                          2 Story
 FAMILY SEAT  MALE ROOM #1
 SEAT


 +4,000                           +4,000
 1 Story                          1 Story
 FAMILY SEAT #1  GUEST DINING
 INSIDE GARDEN


 ±0                                  ±0
 0 Ground Floor              0 Ground Floor



 A  A                                      A  A
                                               A 3



                                         A 0   1  5
   1255   1256   1257   1258   1259   1260   1261   1262   1263   1264   1265