Page 17 - سابقة أعمال ايجي ريفيت السكني
P. 17
B
248.160 m 2
North Elevation
(47.72 %) BATH N
MIRROR
MAKEUP
MASTER
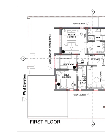
West Elevation Without fence BED ROOM CLOSET MALE ROOM CLOSET ROOF 1 2 3 4 TOTAL AREA E 520.00 m2 PERCENTAGE
BATH
W
(43.60 %)
GROUND FLOOR 227.887 m 2
248.160 m 2
(47.72 %)
FIRST FLOOR
ROOF FLOOR
29.89 m 2
TV 55"
A PORTRAIT SHOES STO. MIRROR ELEV. DOWN 23 22 21 20 19 18 17 16 15 14 A
ENTRANCE
PRIVATE SEAT
OFFICE
25R x 0.16
TV 50" 1 2 3 stDisplayTextstDisplayText 9 10 11
24G x 0.28
UP
7
8
4
5
6
West Elevation BED ROOM BATH FAMILY LIVING FEMALE ROOM CLOSET STO. ROOF & DRYER East Elevation
CHILD
LAUND.
PORTRAIT
South Elevation
BATH
A 3
FIRST FLOOR
B
A 0 0 5

